Modulhaus Huberto

Tři malé dřevěné domky v zelené lesní krajině.
©Carina Rebler

Popis

Prostornost jako v podkroví, ...

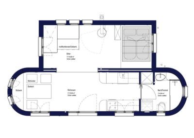
Otevřený krb, který romanticky praská, velká kuchyň s rozsáhlým balíčkem služeb pro vlastní stravování: co víc si přát! Huberto je vedle Luny a Ronji třetím členem souboru Steinapiesting. S obytnou plochou 36 m2 je větším bratrem ve skupině a díky manželské posteli a rozkládací pohovce na míru nabízí dostatek prostoru pro rodiny o 2-4 osobách, které si chtějí vyzkoušet život omezený na to nejnutnější. Útulná kuchyňka, hýčkající dešťová sprcha a lákavý venkovní prostor mezi Lunou a Ronjou dělají z Huberta ideální místo k odpočinku!

Huberto vám také nabízí možnost vyzkoušet soběstačné vybavení WOHNWAGON: velké solární panely v kombinaci s infračerveným vytápěním a kamny na dřevo umožňují velmi vysokou míru udržitelné nezávislosti, pokud jde o teplo a elektřinu. Díky bio-toaletě se stanete průkopníkem v oblasti úspory vody. Zelená střecha také přispívá k vynikající izolaci a vnitřní teplotě v každém ročním období.

Huberto je postaveno jako modul z masivního dřeva "bez dna": 2 prvky byly na pozemek navezeny jeřábem a stojí na šroubových základech, aby byl umožněn hlubší přístup a šetřily se prostředky na podvozek. To znamená, že Tiny House nepotřebuje žádný beton a lze jej kompletně demontovat. Díky přírodním stavebním materiálům (dřevo, ovčí vlna, hliněná omítka) se můžete těšit na opravdu klidný spánek: obklopují vás jen samé dobré věci!
Pobyt v Hubertu má inspirovat k udržitelnému životnímu stylu a vytvořit útulné místo - k vypnutí a odpočinku, nebo dokonce k vyzkoušení udržitelného bydlení!

Huberto
- 36 m² s velkým arkýřovým oknem
- pro 1-4 osoby
- v klidném údolí Gutenstein vedle karavanů Ronja a Luna
- Manželská postel + rohová lavice (lze vysunout a vytvořit manželskou postel)
- Koupelna se sprchovým koutem, samostatným WC a umyvadlem
- Kuchyňský kout s vařičem, dřezem, lednicí
- Fotovoltaický systém, kamna na dřevo
- bez W-LAN
- Domácí zvířata bohužel nejsou povolena. Prosíme o pochopení.

Základní vybavení našeho karavanu zahrnuje
- ložní prádlo a ručníky
- Šampon a sprchový gel
- palivové dřevo
- inspirativní materiály ke čtení
- nádobí na vaření
- Čaj, káva, kakao, džus
- máslo, džem
- müsli, kukuřičné lupínky, sultánky
- Těstoviny, rýže, ocet, olej, koření
Z našich kohoutků teče pouze ta nejlepší, čerstvá pitná voda z pramenů Gutenstein.

Požádat o Modulhaus Huberto

Vaše kontaktní údaje (jméno, adresa, e-mail a telefonní číslo) a údaje týkající se vaší cesty (datum příjezdu/odjezdu, počet osob, počet dětí a věk dětí) budou uloženy u nás pro účely a po dobu zpracování vaší nezávazné poptávky a budou předány příslušnému ubytovateli/poskytovateli za účelem vypracování nabídky. Vaše údaje nebudou dále předávány třetím osobám. Další informace o vašich právech jako dotčené osoby a o nás jako správci údajů naleznete v našem prohlášení o ochraně osobních údajů.

Další informace o zpracování údajů a vašich právech jako dotčené osoby naleznete v našich zásadách ochrany osobních údajů.

Objevování okolí

Výlety, hotely, trasy a další